【物件名】No.002 岬ハイツ
【賃料】34,000円
【入居費用】敷1ヶ月 礼なし 手数料0.5ヶ月
所  在:千葉県いすみ市岬町長者248-5
交  通:JR長者町駅 徒歩13分
構造規模:木造・コロニアル葺・2階建
専有面積:39.75㎡(12坪)
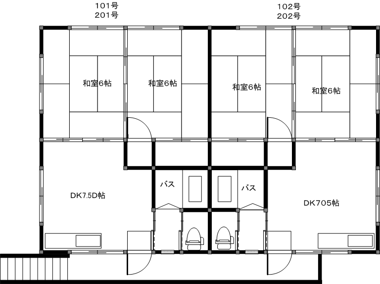
間  取:2DK(和6帖・和6帖・DK7.5帖・バス・トイレ・洗面所)
築  年:平成3年築
契約期間:2年間
保  険:入居者賠償保険(2年間)
駐車場 :1台分有り (月額2000円)
設  備:井戸・プロパンガス・水洗トイレ
空室状況:202号室 入居可
その他 :賃貸保証契約「初回保証料:20,000円」

間取り図

間取り図

現地写真

現地写真

地図
物件の所在地は明確に地図上で示していません。周辺環境の確認としてご利用ください。
物件を実際にご覧になりたい方は末尾のメールフォーム、またはお電話にて弊社までお問い合わせください。



上記物件については、下記メールフォームからお問い合わせいただけます。

物件番号

number

メールアドレス*

e-mail address

確認用メールアドレス*

e-mail address

お名前*

your name

性別

sex

郵便番号

postcode

住所

address

電話番号

telephone

ご希望の連絡方法

Contact

メール 電話
ご用件*

inquiry body

物件を実際に見てみたい
物件に関して詳しく教えて欲しい
希望条件にあう物件を紹介して欲しい
問合わせ物件以外の紹介は不要
その他ご希望、ご要望等

other

*は必須項目です。